想买原木儿童家具,请问哪些品牌推荐?
发布时间:2023-11-19 23:20来源:undefined点击:
题主问的这个问题挺好的,因为直接用了一个基本属于行业术语的“原木家具”来锁定,这是一个相对清晰的定位。
很多小伙伴不明白这个意味着什么,这意味着业主了解“原木家具”和“实木家具”差异,感到疑惑的可以戳这个:
简单来说,原木,就是原切实木,和原切牛排意思差不多,就是树上直接切下来的木板。
当然,原木并不等于高端,或者高价,有相当多的原木,从原材料的角度并不贵,比如松木、泡桐、桦木、橡胶木一类的。
尤其市面上以松木为原材料的儿童床还挺多的,但虽然原材料价格还好,但是做成的家具往往并不便宜,大家去大商场里转过就知道了。

一般来说呢,松木具有比较强烈的天然松脂,要们木头本身做过处理,要么是用封闭油漆覆盖,否则这种松脂味道会经久不散,我们遇到的一些客户吐槽的情况是,用了三年了,松木油脂味道依然很重,孩子不喜欢。
当然,如果孩子适应就另说。
其实,很多家长并不太了解实木家具。比较适合做家具的实木里呢,现在有一类工业化种植的木材:美国的标准烘干模板,比如白腊木白橡木樱桃木黑胡桃木。
其中白腊木,价格相对适中,这个白腊的名字北京的小伙伴应该会比较熟悉,公园里一般可以看到,叶子在秋天非常好看

确实有一类比较好,切割烘干好的木板质感和纹路是这样的

用它做的儿童床,大概如下



这是衣柜



当然,儿童房除了购买成品的家具,其实还可以订制的,更好的利用空间,发两个最近送货安装的案例
这是无锡业主订制的儿童床与衣柜的融合

这是飘窗小书柜

最近还有一个上海交货的一个业主,而且这个儿童房订制案例在抖音 了
发布10天左右浏览量破242万,点赞超3.2万(抖音搜:木匠小强)

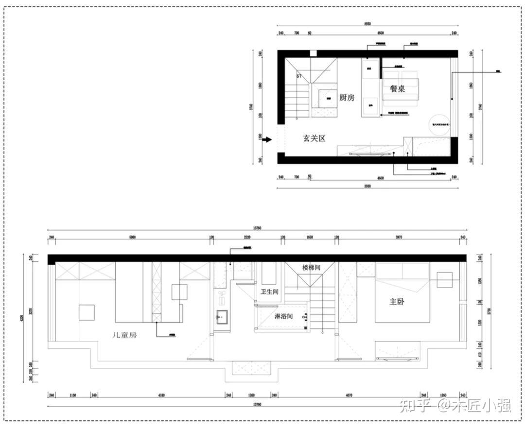
订制业主坐标上海,loft学区房一层为公共空间,面积较小二层两个卧室,这是户型图

传统上下床孩子爬上爬下,互相都容易受影响。两个宝宝相差四岁,作息时间不太一样,将上下铺做在不同方向,可以给两个宝宝相对独立的空间。
上铺作通顶设计,不只是安全考虑,主要是为装遮光帘,避免灯光互相影响。两娃都是男孩,比较皮,一起做作业容易分心打闹,每人一个书桌,公平又独立,就是靠近门一侧书桌采光稍差,不过孩子放学回家天已经黑了,本来也要开灯,周末回另外房子住,其实影响不大。
除了原木更安全环保,订制是希望合理利用空间,并做到安全、工艺和颜值兼顾,现在入住一段时间了,需求基本都实现了……“上铺有玄机”
打开门进来是这样的,先完整看一下

儿童房尺寸:长4.3m*宽3.2m

先看进门右手靠墙订制的流云衣柜
尺寸:长1000*高2463*深600 mm

错落式上铺下方订制成的小书桌虽不大,但放学做个作业也是够用了

上铺围栏原木搭配藤编显得更轻盈透气,给空间增加灵动感

左手空间也不浪费,做成小书架作业书本可以随手插这里

转过来看,外侧还有几个抽屉相当于一个斗柜,增加收纳功能


直梯节约空间,爬上铺看一下吧

在上铺可以看到衣柜的小玄机一侧顶柜做成开放设计,可以随手放东西相当于上铺也有个「床头柜」

头顶还专门装上「床头灯」躲在上面安静地看个书也不错

通顶设计,拉上帘子,无论哪边开灯
另一个都不会受到太多影响

哥俩想聊个天拉开帘子即可说悄悄话

“下铺的巧妙”
转过来看下铺,同样一个流云衣柜绝对公平,绝对够用尺寸:长1100*高2673*深600 mm

上下铺错落背板也不浪费
给下铺也做一个专属小书柜放书、放玩具、放装饰品,实用又好看

床下面的箱体做成大抽屉
增加收纳储物功能

为节约空间,利用飘窗订制小书桌将空间压榨到极致

每人一桌一椅
各自看书学习妥妥滴~

以上供题主参考吧。

