定制家具真的适合你吗?有哪些必须了解的?定
发布时间:2023-11-19 00:15来源:undefined点击:
前言:
现在商家更愿意用全屋定制来取代定制家具做宣传,全屋定制这个说法其实是这些年商家带出来的一个概念,从商家的角度出发,当然是希望你定制更多的家具,多到整个屋子的家具都是定制的,那自然就是全屋定制了。
装修过一次,就被迫成为了半个行家,这句话一点都没错,海绵因为年前刚刚装修了一套房子,也做了不少定制家具,所以借由这篇文章来和各位分享一下自己关于定制家具的经验和想法。
本文纯分享,没有利益相关,如果有不同看法欢迎留言讨论指摘。
成品家具 VS 全屋定制

关于装修家具方面的采买,我个人的建议是能买成品家具的就买成品家具,一是外观做工上会更精细,更个性化,二是成本上更容易控制。
同时成品家具在板材上的选择会更广,胡桃木,橡木,花梨木等等,只要你喜欢的木材基本都能找到对应的成品家具。
而定制家具的板材大都是实木颗粒板,市面上常见的索菲亚,尚品宅配等等,基本都是主打实木颗粒板,虽然大品牌使用的实木颗粒板在环保控制上并没有什么大的问题,但外观和质感上还是和实木不太一样,难以实现一些复杂的工艺和细节造型,视觉上难免会有千篇一律的感觉,或者呆板感,这点在定制家具前还是需要了解的。

当然,全屋定制自也是有其比较明显的优势,否则本文就没有存在的意义了。
那就是:更高的空间利用率,更好的满足个性化需求。
因为是定制的产品,家具的长宽高可以个性化,顶天立地,铺满墙面,遮盖房型结构上的缺陷,打造一体感,这些都是可以通过定制家具来实现的。对于小户型来说,定制家具也能更好的整合空间,提高空间利用率。
如果你在家居设计上有什么自己的想法,也可以更容易的在定制家具中得以实现。
关于测量设计和厂家的选择:
测量设计:
定制家具并没有一定要在哪一步就要开始这样的说法,你家里油漆地板啥都完工了,再弄定制家具也是可以的,从施工上来说,基本都没有问题。
但因为设计沟通需要时间,确定图纸下单之后生产周期又需要时间,所以正常来说第一次的测量在房屋内部结构调整完成后就可以进行了。
房屋的格局已经决定了,该敲的墙体,该砌的墙体都已经搞定了之后,就可以考虑柜子的问题了。
第一次上门测量和设计师沟通好哪些地方要做柜子,自己的需求和想法尽量沟通清楚,这样对双方都是节约时间和节省精力的事情。设计师不是万能的,不知道你的需求,出来的设计稿只会套用他们自己的经验模板,适不适合你的需求就是另一码事了。所以多看看其他人装修的成品图,看看有没有自己喜欢的款式类型,根据自己的实际情况再看能不能套用,都是不错的方法。

第二次上门就是精准测量了,在你们确定好了设计方案之后,时间点卡在油漆工要上漆了,就是比较适合的时间。这时候格局上不会有什么变化了,尺寸上也比较容易掌握,详细沟通好细节然后下单定制。
等地板铺设完成后,材料差不多就能运来了,之后就是安装了。

厂家的选择:
我个人比较倾向于选择知名品牌和大厂,大厂的品控相对会更有保证,我觉得这个没什么好争辩的,更成熟的生产线,更精准的工艺,更好的环保品控。如果你的需求比较大众化,那知名品牌会是更好的选择,索菲亚,欧派,尚品宅配就是很常见的第一集团大品牌,之后第二集团的大品牌就比较多了,这里就不举例了。
如果当地有比较知名的地方品牌,也是可以选择的,当然最好是你周边有亲戚朋友用的那种,眼见为实总比自行脑补要强些。
顺便说一下,我这次装修是选择了索菲亚的,所以下面的实拍图产品也是索菲亚的,再次强调没有利益关系,好坏我都会说的。
关于环保:
大品牌的板材一般都是符合环保标准的,什么E1,E0板材,在板材封边没有问题的前提下,甲醛释放量基本都不会有问题。
如果你追求0甲醛的板材,那基本是不太现实的,在国家标准内选择价格适合的就好。
下图摄于索菲亚实体店:

关于计价方式:
价格计算方面,现在商家一般会给出两种计算方法,一种是展开面积,一种是投影面积:
1.展开面积:
将柜子的每一块板材都拆开计算面积,然后计算总价,确定好设计稿和尺寸之后才能给到精准的价格。
2.投影面积
按家具正面投影面积来计算价格,是否包含柜门看不同商家的定价方案。柜子的深度会有标准上限,超出一般需要加价,柜体内部的的隔层数量也有上限,超过也是需要加钱的。
另外以上两种计价方式中,抽屉啊,特殊的配件啊,特殊的连接件啊,这些都是需要另外计费的,所谓买的不如卖的精,你再怎么算,商家的利润总是摆在那里的。
如果你在选择的时候不知道应该怎么办,大可在最后确认图纸缴费下定的时候,要求商家把两种计费方式的报价单都给你拉一份出来。
不过据我观察,现在商家们主推的还是投影面积的套餐,也会有一些赠品类的优惠,如果自己要做的柜子投影面积差不多的话,应该还是投影面积更划算些。
定制家具具体分析:
下面的部分会结合我家中的定制家具来介绍,我会根据实际的情况分享一些设计的细节和需要注意的问题。
玄关柜:
玄关柜设计方案是在设计师的基础上自己修改的,然后我根据自己喜欢的风格进行了调整。
自己喜欢的风格日后用起来才顺手,看着也会顺眼。
下图是初步沟通后设计师给出的方案,主要是平开门加开放格的设计:

我当初提出的要求是简洁一些,下方要有留空,中间要有置物平台,但设计师给到的开放格设计不在我的审美范畴里面,所以我就自己改了一下。

最后出来的成品图如下:

板材采用了原木色和白色,也是比较百搭基础的配色,板材颜色的搭配建议多看看展厅里的出样,如果是网络下定,可以多比照下宣传图片和评价里的实拍图。可按喜好选择,顶天立地的白色也不会太压抑。
上下柜没采用整体柜结构,下柜撑地,上柜用的吊柜,设计师考虑到承重,所以背板的部分改为了厚板(另外收费)。
中间采用了部分留空设计,不会太压抑,摆放装饰,随手小物绰绰有余。高度45cm,不建议再高了,足够用了,设计上也可以留个柜体灯。同时这部分我取消了背板,背面直接是白墙感觉更好看些。
靠房间内侧的部分取消了挡板的设计,为了进门视线看起来更通透,同时正式因为取消了这块板,没有了支撑,上柜才只能做成吊柜。

拉手的部分是自己购买的,索菲亚套餐里的拉手个人不太喜欢,于是我自己购买了,注意单孔拉手让师傅安装没什么问题,如果是双孔的,师傅未必同意,需要自己沟通(建议塞包烟)。拉手的安装位置也调整了下,上下都靠中间位置,便于开关。

内部分割按实际需求,我下柜的分割间距比较小,因为基本没有靴子和高帮,所以安排了五层,下柜总高110,右侧小柜体间隔则比较大一些。
上柜后方因为是强电箱,同时考虑到承重的问题,没有直接上隔板,网上购买了可层叠的塑料鞋盒,要取下来也会比较方便,也减少了上柜的重量。当然这部分的设计仅供参考,其实也可以强电箱的部位留空,上下放上隔板。

柜体下方离地20公分,事先安排电源留给扫地机器人,我觉得扫地机器人放在这里比放在电视柜下顺眼多了,不用看个电视一直瞥到它,而且旁边依旧可以放常穿的鞋子。
关于扫地机器人的这点我着重说明下,我看了石头和米家的扫地机人的说明,都表示摆放位置左右要留空20cm以上,我后来实验了一下,像我这样放也没有影响,完全没问题。
另外电源留好后,安装的时候让师傅把插座移到板材上的(事先和设计师沟通,这部分也是收费的)。

三扇门我采用了两大一小的设计,而没有采用设计师提供的等分设计,视觉上感觉没有那么死板。

换个角度来一张,侧面看起来挺厚的是因为我把柜体深度加到了40cm,因为门口这块位置挺大的,这个看个人需求,一般玄关柜鞋柜差不多35cm就够了。

这里顺便说一下安装的问题,定制家具是现场组装的,因为涉及到现场微调,部分切割,以及一些临场的判断。如果安装工人的水平不到位或者不仔细,是会产生差异的。
我安装的当天,来了五位师傅(是的,你没看错,为了一天安装完成,商家直接派了一支小分队过来),其中三位肉眼可见的手艺更好些。另外两位则不太行,结果证明在细节上安装确实有问题,比如门缝偏大,贴墙找平不到位之类的,但索性影响不大。所以我给到各位的建议是,如果像我一样是小分队过来的,直接问谁是负责人,让他安排资历更老道的师傅负责玄关柜这种日常看见几率更好的柜子,资历较浅的可以去安装阳台柜之类的。

楼梯柜
接下来顺势把玄关柜旁边的楼梯柜说了,楼梯柜就是传统意义上的异形柜了,成品家具基本是不可能完全匹配的,所以定制家具的优势就体现出来了。
同时不同户型的楼梯结构造型都不太一样,这就更需要和设计师沟通妥当。
我家的楼梯结构比较奇葩混凝土楼梯,下方有方形立柱支撑,所以不能完全利用。

下图是设计师出的图纸,红色部分是我改动的部分,主要改动是把中间的立柱也做贴面,然后左右的门都往外移出来,和立柱这里的贴面对齐成为一整个平面。右侧上方的抽屉则改成了大平抽。

成品出来的视觉效果还可以,完整度比较高,试想如果立柱的部分还是白墙的话,左右两边各自分开,看起来肯定会怪怪的,另外最后左下角的抽屉设计取消了,因为太窄了,没办法利用。

两个抽屉可以放一些餐具,因为就在餐厅旁边,我也顺势把它当成了收纳用的小餐边柜。

下方的拉门里面分成了4格,可以放一些平时用的比较少的锅具啊,烘焙工具之类的。下方的单独拉门可以放一些厨房用纸啊,洗碗粉等需要储存的东西。

这里提醒一点,一般定制家具斜面切割的话是没有工厂封边的,至少索菲亚是这样的。所以在设计的时候和设计师商量,在斜面的地方单独定制了一条长方形的板材,然后直接作为封边使用,这样两边稍作切割,就可以把不封边的部分降低到最小面积。

换个角度再来两张:


阳台柜
阳台是开放式的,因为阳台这里的垭口不能敲掉,所以感觉两边都空着有点浪费,于是决定在一边做一个阳台柜,也就是下图红框的位置,而对面的一侧则留空准备放猫砂盆猫爬架。

阳台柜的设计就比较简单了,因为有单独的洗衣房放洗衣机和烘干机,所以阳台柜就是纯储物和装饰的作用,遮盖掉下方的空调管,以及遮挡掉一半的下水管。
因为不想遮挡旁边的窗,所以柜子没有做顶天立地的,只做了一米不到的高度,比窗略低。

完成图是这样的,双平开门设计,比较简单,内部就是比较简单的三层分割,可以收纳一些清洁用品啊,猫粮猫砂之类的:

考虑到阳台这里的日照充足,设计师建议我这里不要直接使用板材作为台面,以免过度曝晒产生老化,于是我另外定了一个石英石台面。

因为厨房的橱柜是另外一家公司定制的,所以我就找了他们单独订了一块阳台柜的石英石台面:

刚装上的样子,看起来就是按照厨房台面的标准施工的,因为是和厨房洗衣房一起定制的,所以费用也不高,如果单独定制单独来安装的话,估计就要贵上不少了。

安装完之后,用麻绳装饰了一下落水管,后来又安上了窗帘和新风机,现在这个角落是这个画风:

洗衣房的吊柜:
这个吊柜原本并不在计划里面,因为我是按照全屋定制投影面积计算价格的,参加套餐后发现还有余量,所以临时在这里加了个柜子,之后发现倒是挺方便的。

洗衣房是L型台面加水槽的设计,基本的做法和厨房间橱柜没什么区别,当下定制厨房橱柜的时候一起定了这个洗衣房的台面和下柜,为了节约成本,并没有定制上柜。

下柜台面的深度是60cm,为了不影响在台面上的操作,上柜我只定制了30cm的深度,并且宽度没有全部做满,旁边突发奇想装了一个浴巾架用来挂挂临时穿又不用马上洗的外套,卫衣之类的,感觉很方便。

吊柜不建议放太多洗衣液啊消毒液这种比较重的物品,我在里面放了一些毛巾啊,浴巾啊,厨房纸巾,一次性拖地巾之类的日用品,塞得满满当当也不用担心过重。
水吧柜
严格来说这个在主卧门口的柜子,我也不知道应该称它为什么,做这个柜子的初衷是为了晚上想喝水的时候不用下楼去厨房,所以就叫它水吧柜吧。
从设计图上来看和玄关柜有点类似,上下是储物空间,中间是放置饮水机的平台。

完成后是下图这个样子的:

台面离地距离90cm,中间平台的高度45cm,站在前面使用的感觉刚刚好。
需要注意的是,这个中间平台的背板深度只有45cm,而上下柜体的背板深度为65cm,如果中间的背板也做到65cm的话,我感觉视觉上肯定会不协调,于是让设计师做了这样的改动。

上柜下方装了感应灯,挥手开关非常方便,下图可以看到前方装了一根档条,正好可以挡住灯的位置,从正面看就是只见灯光不见灯了。
灯具可以事先采买,记得和设计师说下自己的需求,安装的时候可以让师傅接一下线。

上下柜体都做了十字格分割,上面放轻一些的东西,下方可以放重一点的,还是能收纳不少东西的。

这个柜子在装修前原来是一个小的储藏室,现在定制了柜子之后不仅保留了部分的收纳功能,同时也满足了我睡前和夜里喝水的习惯,所以说设计还是要考虑到自己的实际需求。

衣帽间
家里有一间斜顶的房间,本来是用作储藏室的,这次重新装修决定将其改变为衣帽间。
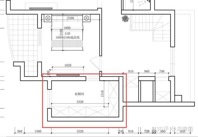
下图是局部的平面图,画红框的位置就是衣帽间的所在位置,可以看到面积大约为8个平米左右。

看平面图看不出是斜顶的,用设计软件画下图就能直观了解了,高处大约有三米,最低处有1.5米。最低处还有一扇窗户。总体来说1.5米的高度不算太低,视觉上也不会太压抑。

屋顶的部分原来是斜顶一直上去的,也就是顶部会形成了一个三角,下图中中已经是设计后的样子,做了一个吊顶,吊顶的部分挺重要的,尖角的顶面不方便做衣柜,同时基本也没什么可利用的,建议还是拉个平吊顶。
关于吊顶的高度,可以参考其他的房间,我是设计到了2.6m。吊顶越低则平面越大,吊顶越高则平面越小,这个应该很好理解,这个部分也决定了我们定制衣柜的平顶柜子的边长和深度。
建议吊顶深度最少也要大于60cm,这样至少能保证一面墙能做顶天立地的柜子,增加利用率。

关于要不要装柜门:
衣帽间用定制家具来做是很好的解决方案,我们在网上会看到很多案例,有些是全开放式的,有些则是安装柜门的。
这个部分看个人喜好,我一开始的初版设计是部分有柜门的,但是因为衣帽间本来就有一扇门,想到每次进去还要再打开衣柜门,找衣服的时候也会比较麻烦,觉得长此以往肯定会心生厌烦,综合考虑后还是决定全部做成开放式的。
初版方案:

修改版:

不过这里提醒一点,如果不安装柜门,衣帽间的门尽量选择平开门,密封性会好些,里面不容易落灰。如果是移门的话缝隙会比较大,更容易积尘。

关于衣帽间的布局
首先,能顶天立地的部分建议做满,好处不多说了,尽可能的利用空间。上面柜子放不常用的被褥,下面按照喜好设计。
我在这个完整的墙面部分就设计了四个挂衣杆,外加一些小方格可以用来放放包,和一个小抽屉放放重要的东西。
挂衣的部分是根据我自己的喜好设计的,因为我喜欢挂衣服收纳,不喜欢叠衣服收纳。洗衣机洗完,烘干机烘干,直接挂上衣架,下次穿的时候找起来方便也不用考虑会有压痕。

挂上衣服后如下图这样满满当当的,衣服在哪里也是一目了然,个人感觉衣服挂起来是真的方便:

转角的部分也不要浪费了,做成开放式的转角最大程度的利用空间。转角柜的衣通就用下面这种t型连接,不浪费一点空间。

右边比较长的那块挂衣区是用来挂大衣的,毕竟长款大衣比较少,所以这块的部分设计的不算大,但还是要考虑到。

斜面部分的设计一般就是做成阶梯状的,为平衡美感,柜体的宽度可以考虑做成一样的,这样不会太奇怪,下图中两个阶梯柜就是平分的864mm的宽度。

下方做了四个抽屉,放一些不适合叠放或者挂起来的东西,比如首饰之类的,你也可以把它当做内嵌的首饰柜。周围就是简单的开放格,可以当做叠放区,也可放包包之类的。
抽屉其实挺大的,差不多800mm宽,如果比较考究的也可以做成有左右分割的双芯抽,我是决定之后用其他收纳盒来做内部分割的,也是出于成本上的考虑。

最低的那边墙因为有窗,我原本的设计是想把窗户完全遮掉的,但后来觉得唯一的自然光源还是保留下来吧,原本就是斜顶了,留点自然光不会太压抑。

所以这个部分就做了矮柜,竖着可以放入20寸的行李箱,大的行李箱可以横过来叠放,其他的部分还没有完全整理好,刚搬过来,先这样放一下。

最后吐槽一下索菲亚,因为是根据投影面积计算的,这个面积套餐里面是包含柜门的,但是我这部分衣帽间并不需要柜门,而且面积还是挺大的,最终在金额上也没有相应的减免,这点我觉得还是不太合理。
最后:
再补充几点注意事项:
1.定制家具不要勉强,不要因为优惠套餐把原本购买成品家具的计划打乱,只定制必要的家具。
2.参与到设计中去,把想法和需求都告诉设计师,不要事不关己都交给设计师。
3.设计的时候不要勉强,不要为了满足套餐,有不做白不做的心态,不必要的地方如果多装了柜子,可能会影响生活动线,日后容易后悔。
4.水电阶段就要想好日后定制家具的摆放位置和大致尺寸,以免之后挡到插座或开关。
5.定制的颜色的款式尽量统一,毕竟家装是一个和谐的整体。
6.选择板材时候,在不同光线下观察下颜色,尤其是白色,要与墙漆的冷暖一个调性。
7.最后确认时,图纸上的颜色和重要尺寸都要仔细检查,确认签字交钱后就会生产了,所有口头上的承诺都要体现在合同和图纸上。
8.安装时一定要有家人在场,有问题可以及时沟通矫正,事后拆补就会比较麻烦。
9.如果装衣柜的房间有装顶角线,注意提前规划。
10.踢脚线装地板的时候可正常安装或者留空(预留踢脚线板材),安装定制家具时师傅会处理修补的。
分享的部分就到这里,最后再次强调一点下,定制家具设计师在定制家具中起到的主要作用是帮助我们把需求和想法变成可以实现的图纸,所以自己尽可能的还是多做一些功课,把需求阐述的尽量具体一些,做一个可爱的甲方爸爸,最终得益的还是我们自己。
以上。
“家具定制网”的新闻页面文章、图片、音频、视频等稿件均为自媒体人、第三方机构发布或转载。如稿件涉及版权等问题,请与 我们联系删除或处理,客服邮箱:html5sh@163.com,稿件内容仅为传递更多信息之目的,不代表本网观点,亦不代表本网站赞同 其观点或证实其内容的真实性。