面积98平米的房子好不好?北欧风格装修案例!
发布时间:2023-08-19 01:47来源:undefined点击:
装修是买房者必须要经历的,很多业主都选择了二居室的房子,其实98平米的房子来满足日常的需求足矣。这样的房子大多数都会采用,北欧风格来装修,下面小编就给大家介绍一下通州北苑15号院小区一幢98平米的房子如何装修?
本案例基本上基于以墙纸为要装饰面材、结合混油的木工做法。这种风格强调比例和色彩的和谐。人们开始会把一堵墙的上部分与天花同色,而墙面使用一种带有淡淡纹理的墙纸。整个风格显得十分优雅和恬静,不带有一丝的浮躁
客厅是家居设计的核心区域,是我们长时间活动的区域,也是客人来访时的主打区域。客厅设计的好坏对于家居整体的颜值有很大的影响。
客厅和采用了地板的设计,这样的性价比超级高
客厅的沙发是才香河家具城购买的
空间非常的宽阔,简约大方
客厅的灯具,是客户在淘宝购买的
厨房是我们烹饪美食的地方,它的好坏会影响我们进餐时的心情。而随着近年来的装修风格改变,厨房已成为集餐厅和家庭活动为一体的空间。所以在装修时越来越受到重视。
橱柜的定制是用了英迈的品牌
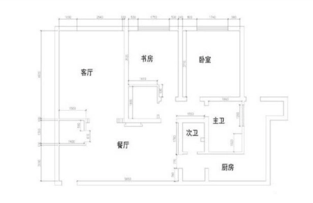
以下就是本套通州北苑15号院小区98平米二居室房子的户型图。
温暖的配色,柔和的家具和布局,对房屋面积要求也不是特别局限。
以上就是通州北苑15号院小区二居室装修的案例了,怎么样看起来是不是很好,虽然是北欧的风格,但是却很适合现代年轻人。如果你家也是98平米,也是二居室,也需要北欧的装修风格,可以参考一下哦!今天这套装修案例就给大家介绍到这里,希望对要装修的朋友有帮助!
“家具定制网”的新闻页面文章、图片、音频、视频等稿件均为自媒体人、第三方机构发布或转载。如稿件涉及版权等问题,请与 我们联系删除或处理,客服邮箱:html5sh@163.com,稿件内容仅为传递更多信息之目的,不代表本网观点,亦不代表本网站赞同 其观点或证实其内容的真实性。